
The Mori House is a family project where we acted as executive architects to realise a coastal home for regular Neometro client Jeff Provan. It translates a concept design by Portuguese architect Manuel Aires Mateus into an Australian reality, utilising MA+Co's careful detailing and on-site quality control.



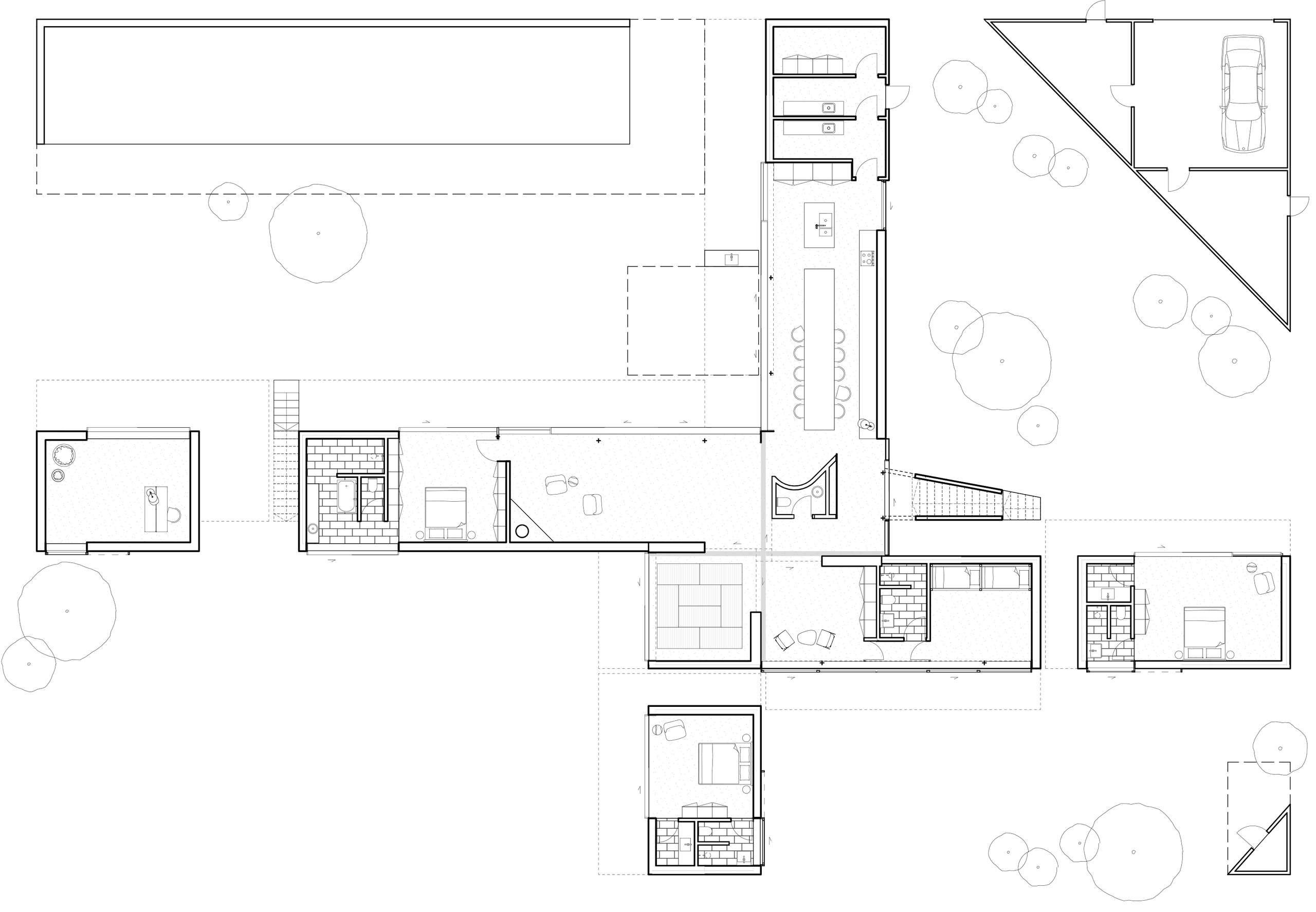
This in-situ concrete house on Port Phillip Bay is a series of protective pavilions around courtyards that vary in character from pool, garden, and olive grove entrance, to a chicken run. These are connected by a volume below a cruciform lantern and by concrete staircases across a rooftop belvedere. Internal spaces vary in scale and specificity and include a tatami room. The residence can be intimate for two or open up for a gathering.

Built for a multi-generational and multicultural family, the beach house succeeds as fusion of Australian, Portuguese and Japanese design influences and showcases our adaptability.





Mori House
- Location Mt Martha
- Status Completed 2023
- Collaborators Neometro
- Photography Derek Swalwell